11x8-rooover--A.jpg

HOUSE-0B

SOUTH SHORE:

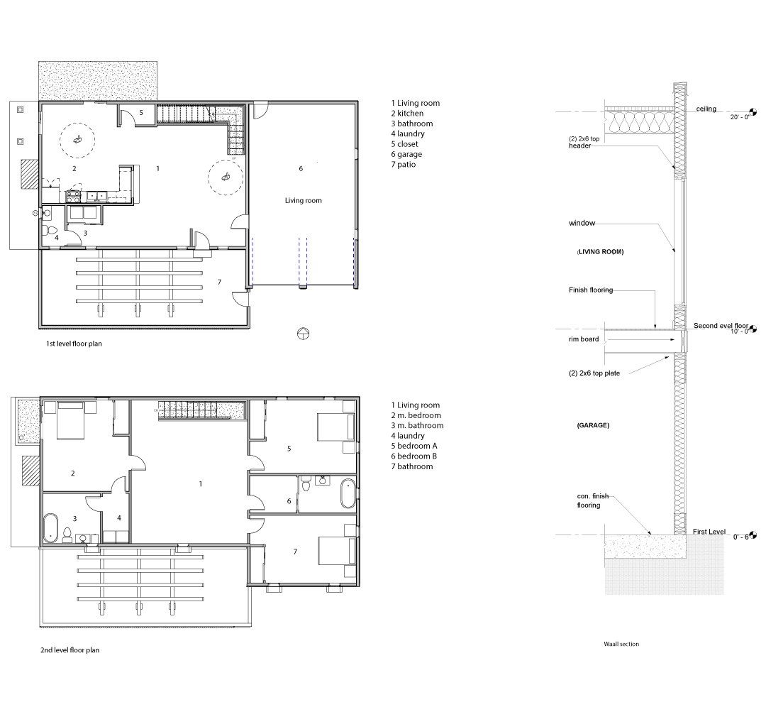
This contemporary two-story residence is thoughtfully designed to coexist with its natural surroundings, offering a calm and balanced living environment in the countryside. The home emphasizes simplicity, clarity of form, and a strong indoor–outdoor connection, allowing nature to become an integral part of daily life.

The program includes three bedrooms, open-concept living and dining areas, and dedicated spaces for entertainment and gathering. Large openings and carefully framed views bring natural light deep into the interior while creating a seamless transition between interior spaces and the surrounding landscape.

Material choices and spatial organization prioritize comfort, functionality, and longevity, resulting in a residence that feels both modern and grounded. The design reflects a contemporary lifestyle rooted in tranquility, connection, and respect for the natural environment.

Responsibilities: Pre Design Project Foundation

  • Programing and Client Needs: Meeting with clients to define project goals, functional requirements, and desired square footage.

  • Site Analysis and Zozing: Researching jurisdictional restrictions, building codes, setbacks, height maximums, and, if applicable, performing feasibility studies.

  • Conceptual Design Development: Creating initial sketches, 3D models (using software like Revit/SketchUp), and renderings to explore building form, massing, and spatial flow

  • Design Documentation: Creating initial sketches, 3D models (using software Revit), and renderings to explore building form, massing, and spatial flow.

  • Design Documentation: Preparing preliminary site plans, floor plans, and elevations to illustrate the project's layout and character.