ChatGPT-Image-Apr-4,-2026,-11_09_10-PM.jpg

HOUSE-0A -in progress

house a in progress

Project Description:
This two-story contemporary residence explores minimalism through clarity of form and spatial discipline. Clean geometries and deliberate proportions define the architecture, while layered volumes create moments of tension and balance between solid and void. The home accommodates three bedrooms, an open kitchen, and elevated living spaces that extend onto a balcony, reinforcing a dialogue between interior and exterior. Light, structure, and movement shape the experience of the house, resulting in a composed yet dynamic domestic environment.
Responsabilities:

  • Produced sketches, study renderings, and detailed design drawings through the integration of mixed-medium.

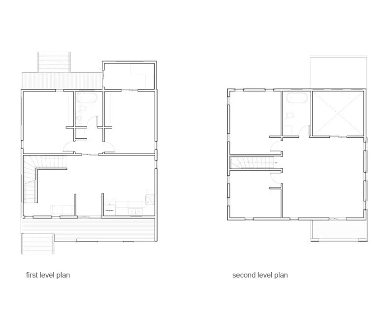
  • Draft floor plans and produce exterior compositions per design intent.

  • Developing and presenting early design proposals that meet functional, aesthetic, and budgetary requirements.



Site location

 
 

It all started when…

Aenean eu justo sed elit dignissim aliquam. In sit amet felis malesuada, feugiat purus eget, varius mi. Maecenas non leo laoreet, condimentum lorem nec, vulputate massa. Quisque congue porttitor ullamcorper. Maecenas non leo laoreet, condimentum lorem nec, vulputate massa.